闸阀知识
阀门首页 > 阀门知识 > 闸阀知识 > Z941电动闸阀是一种广泛应用于石油、化工、制药和电力等行业的阀门,主要用于蒸气、水、油品等介质的管路上进行启闭操作。以下是关于...
手动刀闸阀门改电动阀产品介绍主要包括以下几个方面: 定义和功能 手动刀闸阀门改电动阀是通过将手动刀闸阀门的操作机构替换为电动...
污水专用电动刀型闸阀是一种专门设计用于污水处理系统的阀门,具有多种特性和应用场景。以下是关于污水专用电动刀型闸阀的详细介绍...
大口径电动刀闸阀是一种通过电动装置驱动的阀门,主要用于远程控制阀门的开启和关闭。其结构包括左、右阀体、密封面、闸板、钢螺母...
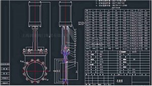
电动刀闸阀,也称为电动刀型闸阀,是一种重要的流体控制设备。其结构相对简单,主要包括阀体、闸板、阀杆、密封件和执行机构(电动...
电动刀闸阀的工作原理基于电动执行器的驱动。当电机接收到控制信号时,它会驱动阀杆进行上下运动,进而带动闸板在阀体内进行升降。...
电动闸阀PZ973H是一种高性能的工业控制阀门,结合了电动装置与刀型闸阀的优点,具备结构紧凑、设计合理、密封可靠、操作轻便灵活等特...
彩神购彩购彩大厅手动铸钢闸阀改为电动阀门,是一项重要的工程改造,将传统的手动操作方式升级为自动化控制,提高了设备的...
电动陶瓷排渣闸阀是一种通过电力驱动来实现阀门启闭的设备,其关键部件采用陶瓷材料制成,以提高耐腐蚀、耐冲刷和耐高温等性能。电...
电动弹性座封闸阀DN100是一种采用电动驱动的弹性座封闸阀,其公称通径为DN100。 产品特点 轻便性:采用树脂砂造型球墨铸铁材料制成,重...