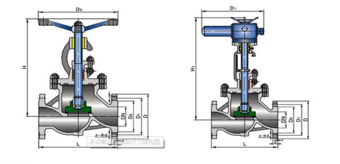
法兰截止阀
阀门首页 > 产品展示 > 截止阀 > 法兰截止阀 > 






| 型号 | J41H-16C~160C | J41Y-16C~160C | J41W-16P~160P | |
| 工作压力(MPa) | 1.6~16.0 | |||
| 适用温度(℃) | ≤425 | ≤150 | ||
| 适用介质 | 水、蒸汽、油品 | 弱腐蚀性介质 | ||
| 材料 | 阀体、阀盖 | 碳素钢 | 铬镍钛不锈钢 | |
| 阀杆 | 铬不锈钢 | 铬镍钛不锈钢 | ||
| 密封面 | 堆焊铁基合金 | 堆焊硬基合金 | 本体材料 | |
| 填料 | 石棉石墨、柔性石墨、聚四氟乙烯 | |||
| 公称压力 | 1.6 | 2.5 | 4.0 | 6.4 | 10.0 | 16.0 |
| 强度试验 | 2.4 | 3.8 | 6.0 | 9.6 | 15.0 | 24.0 |
| 水密封试验 | 1.8 | 2.8 | 4.4 | 7.4 | 11.0 | 18.0 |
| 上密封试验 | 1.8 | 2.8 | 4.4 | 7.04 | 11.0 | 18.0 |
| 气密封试验 | 0.4-0.7 | |||||
| 体盖扳 | 阀杆 | 密封面 | 垫片(环) | 填料 | 工作温度℃ | 适用介质 |
| WCB | 2Cr13 |
13Cr STL 本体材料 尼龙 |
增强柔性石墨 1Crl3/柔性石墨 08软钢 0Cr18Ni9Ti OCr18Ni12Mo2Ti |
柔性石墨 增强柔性石墨 SFB-260 SFP-260 |
≤425 |
水、蒸汽、油品 |
| WC1 |
38CrMoAI 25Cr2MoV |
≤450 | ||||
| WC6 | ≤540 | |||||
| WC9 | ≤570 | |||||
| ZGCr5Mo | ≤540 | |||||
| ZG1Cr18Ni9Ti | 1Cr18Ni9Ti | ≤200 | 硝酸类 | |||
| ZGCr18Ni12Mo2Ti | 1C18Ni12Mo2Ti | ≤200 | 醋酸类 |


上一篇:J941H-16C dn25蒸汽管道用电动法兰截止阀 / 下一篇:手动截止阀J41H-25P,DN20厂家